Privatna klinika Milmedika/ Arterija Studio/ Nikšić /
DUGO GODINA ZABORAVLJENA ZGRADA NEKADAŠNJEG “ ZETATRANSA” ADAPTIRANA JE U PRIVATNU ZDRAVSTVENU USTANOVU “MILMEDIKA”. STUDIO ARTERIJA ČIJI JE OSNIVAČ MILJAN JOKOVIĆ IZ NIKŠIĆA BILO JE ZADUŽEN ZA ADAPTACIJU UNUTRAŠNJEG PROSTORA I UREĐENJE ENTERIJERA. IAKO SU URAĐENE MINIMALNE INTERVENCIJE NA OBJEKTU, ON SADA ODIŠE NA MODERAN NAČIN.
GRAD JE DOBIO JEDNU MINI URBANU ZONU, KOJA MOŽE POSLUŽITI KAO PRIMJER DOBROG UREĐENJA I PRILAZA OBJEKTU. PROJEKTANT JE USPIO DA SE IZBORI SA TIPIČNOM STERILNOM ATMOSFEROM ZDRAVSTVENIH USTANOVA I STVORI PROSTOR KOJI ODIŠE TOPLINOM U ENTERIJERSKOJ OBRADI A ZADRŽAVA ODLIKE GLAVNE NAMJENE OBJEKTA KOJI ODRŽAVA VISOK NIVO HIGIJENE I FUNKCIONALNOSTI.
Privatna zdravstvena ustanova “Milmedika” otvorena je u objektu nekadašnjeg “Zetatrans”-a u širem centru Nikšića. Kako bi objekat zadovoljio potrebe zdravstvene ustanove, i u odnosu na njegovo zatečeno stanje, bila je neophodna adaptacija. Objekat je izgrađen u drugoj polovini devedesetih godina, prema projektu arhitekte Maraš Miodraga.

Projektnim zadatkom investitor je tražio da objekat odiše toplinom u enterijerskoj obradi, a da zadrži odlike glavne namjene objekta.
Projektom adaptacije su izvršene intervencije u unutrašnjem prostoru i djelimično spoljašnjem prostoru, koje su podrazumijevale prvenstveno izmjenu funkcije prostora.
Kako bi objekat bio potpuno funkcionana i zaokružena cjelina u građevinskom, energetskom i instalacionom smislu, bila je neophodna promjena svih unutrašnjih instalacija – vodovodnih i kanalizacionih, instalacija jake i slabe struje, a takođe i zamjena fasadne stolarije.
Fotografija gore /Objekat je izgrađen u drugoj polovini devedesetih godina, prema projektu arhitekte Maraš Miodraga. Zatečeno stanje.

- Fotografija gore /Objekat je izgrađen u drugoj polovini devedesetih godina, prema projektu arhitekte Maraš Miodraga. Zatečeno stanje.
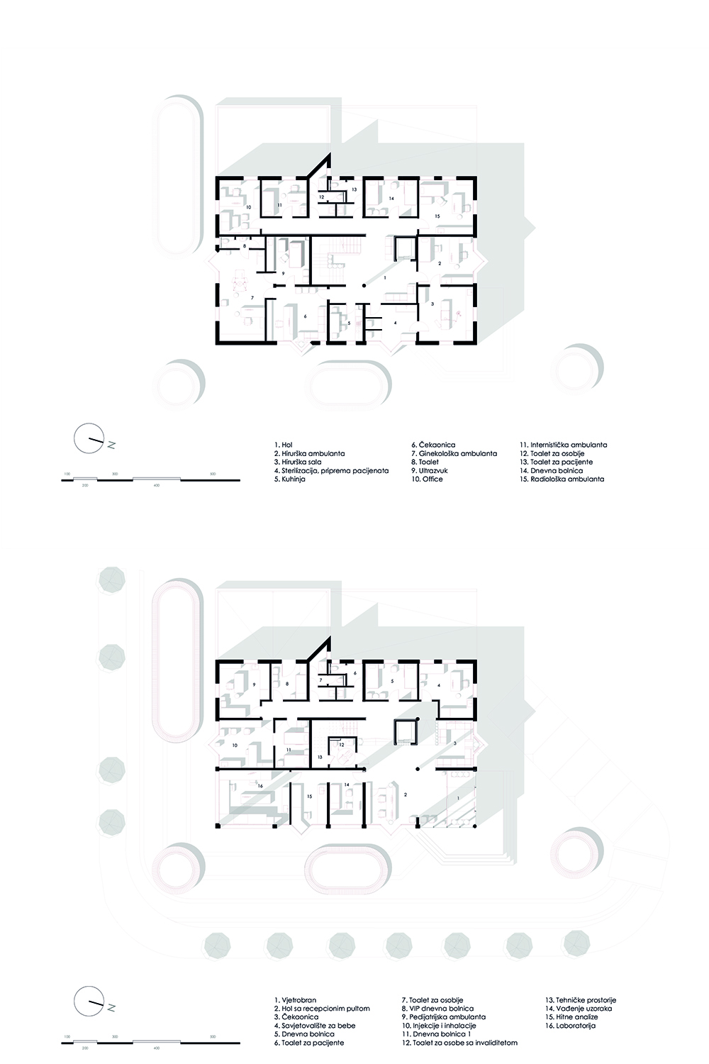
Funkcionalno rješenje objekta je većim dijelom zadržano. Sanitarni čvorovi su takođe zadržani na postojećim pozicijama, s tim što je dodat toalet za osobe sa invaliditetom na prizemlju, kao i toalet u sklopu apartmana na potkrovlju. Formirana je i rampa na dijelu postojećeg stepeništa kako bi se postojeći objekat prilagodio i osobama sa smanjenom pokretljivošću. Projektom je bilo predviđeno rušenje nekih zidova i probijanje otvora koji ne utiču na statičku stabilnost objekta, rušenje ab ograde na spratu, izrada novih pregradnih zidova, zazidavanje nekih postojećih otvora, kao i izvođenje svih drugih radova u cilju postizanja pune funkcionalnosti prostora, a sve prema planu intervencija.
Objekat sadrži sve prostorije neophodne za pravilno funkcionisanje privatne zdravstvene ustanove – ulazni dio sa vjetrobranom i recepcionim pultom, čekaonicu, toalete za pacijente, za osobe sa smanjenom pokretljivošću i kupatilo za osoblje. Iz hodnika se pacijenti distribuiraju u ordinacije – na prizemlju se nalazi savjetovalište za bebe, pedijatrijska ambulanta, dnevna bolnica 1 i 2, VIP dnevna bolnica, medicina rada i ordinacija za injekcije i inhalacije. Na prizemlju se takođe nalazi i laboratorijski blok sa svim neophodnim prostorijama – prostorija za vađenje uzoraka, prostorija za hitne analize, i laboratorijski dio. U dijelu ispod stepeništa smještena je tehnička prostorija.

- Objekat nakon adaptacije
Na prvom spratu se nalazi hol sa čekaonicom, toaleti za pacijente i kupatilo za osoblje, oftalmološka ambulanta, ginekološki blok sa čekaonicom, ginekološkom ambulantom sa sopstvenim toaletom i ultrazvukom, kao i hirurški blok sa hirurškom ambulantom, prostorijom za sterilizaciju i pripremu pacijenata i hirurškom salom. Na spratu su takođe smještene radiološka ambulanta, internistička ambulanta, dnevna bolnica, kancelarija za direktora kao i čajna kuhinja.
U potkrovlju je predviđen apartman za odmor ljekara, zatim vešeraj, garderoba za zaposlene, kao i dodatni tavanski prostori neophodni za skladištenje.


U sklopu adaptacije bilo je predviđeno i postavljanje novih podnih obloga – vinil podova i keramičkih pločica, sa izlivanjem novih cementnih košuljica, kako bi bile zadovoljene potrebe zdravstvene ustanove. Izvršeno je i uklanjanje postojećih i izvođenje novih spuštenih plafona.
Projektom je predviđen i raspored namještaja i mobilijara prema zahtjevu Investitora, a u skladu sa prostornim mogućnostima i zadatim parametrima. U materijalizaciji enterijera su primjenjeni najsavremeniji materijali preporučeni za datu funkciju, kako u završnim oblogama, tako i u opremanju mobilijarom. Medicinska oprema je poslednje generacije.

Imajući u vidu da se objekat nalazi na raskrsnici dvije prometne ulice i uz pristupnu ulicu na samoj lokaciji impliciralo je formiranje pijacete sa parternim uređenjem i bogatim hortikulturnim akcentom. Na taj način objekat se izdvojio u urbanom tkivu svojom novom prepoznatljivošću.








