VLASNICI PREDUZEĆA I PROSJEČNI RADNICI PODJEDNAKO PROVODE ZNAČAJAN BROJ SATI U POSLOVNIM ZGRADAMA. KAO TAKVA, KLJUČNO JE DA ZGRADA I NJENA OKOLINA ODGOVARAJU POTREBAMA I NAMJENI STANARA, NUDE UDOBNOST I VIZUELNU PRIVLAČNOST TE STVARAJU OKRUŽENJE DOBRODOŠLICE. ZA ARHITEKTURU, PROJEKTOVANJE POSLOVNE ZGRADE JE ZASTRAŠUJUĆI ZADATAK KOJI ZAHTIJEVA PUNO RAZMATRANJA I RAZMIŠLJANJA. DIZAJN ZGRADE U SVOM VIZIONARSTVU NAJBOLJE ANGAŽUJE, UZBUĐUJE I INSPIRIŠE. PROJEKTE KOJE VAM PREDSTAVLJAMO U OVOM BROJU POSJEDUJU SENZIBILITET PRILAGOĐEN MJESTU NA KOJEM SE NALAZE A UJEDNO ISPUNJAVAJU SVE POTREBE SVOJIH KORISNIKA.
BEEAH Headquarters / Zaha Hadid Architects
Poslednje remek-djelo Zahe Hadid
Smještena u pustinji Al Saja, zgrada od 9.000 kvadratnih metara, dizajnirana od strane pokojne arhitekte Zahe Hadid, dugoočekivano sjedište Beeah ima oblik serije “međusobno povezanih dina” koje odražavaju okolinu pustinje Al Sajaa.

Photo: Hufton+Crow
Beeah Grupa je sarađivala sa Zaha Hadid Architects za njihov štab u Šardži u Ujedinjenim Arapskim Emiratima. Struktura koja oduzima dah je jedna od poslednjih zgrada koje je pokojna Zaha Hadid dizajnirala prije nego što je preminula 2016. Formirana poput isprepletenih dina, poprima oblik pustinje Al Sajaa na kojoj se nalazi. U masivnoj strukturi od 9000 kvadratnih metara smještene su kancelarije za upravljanje i administraciju grupe. Sa estetikom i funkcionalnošću zgrade, tim ima za cilj da postavi novi standard za buduća radna područja. Nakon međunarodnog konkursa za dizajn 2013., Zaha Hadid i njen tim dobili su zadatak od Beeah-a da dizajniraju novo sjedište kompanije koje bi ostvarilo neto nultu emisiju i bilo integrisano s tehnologijama sljedeće generacije kako bi se postigao novi standard za udobnost i saradnju zaposlenih.

Sa svojom dvostubnom strategijom održivosti i digitalizacije, BeeahGrupa radi u šest ključnih industrija koje uključuju upravljanje otpadom i reciklažu, čistu energiju, savjetovanje o životnoj sredini, obrazovanje i zelenu mobilnost.
Unutrašnji prostori
Svi unutrašnji prostori su pozicionirani tako da obezbijede dovoljno prirodnog svjetla i pogled napolje bez potrebe za velikim staklenim površinama.
Dizajn sjedišta odgovara svom okruženju kao niz međusobno povezanih ‘dina’ orijentisanih i oblikovanih tako da optimiziraju lokalne klimatske uslove. Ugrađen u kontekst pustinje Al Sajaa u Sharjahu, dizajn odražava okolni krajolik oblikovan prevladavajućim vjetrovima u konkavne pješčane dine i grebene koji postaju konveksni kada se sijeku.
Ovo uključuje njegovu betonsku oblogu ojačanu staklenim vlaknima, koja je primijenjena preko spoljašnjosti kako bi pomogla u regulisanju unutrašnje temperature. Vijugavi oblici zgrade nastavljaju se unutar u predvorju visokom 15 metara, koji je dizajniran da olakša prirodnu ventilaciju i filtrira prirodno svjetlo kroz unutrašnjost.

Osiguravajući da svi unutrašnji prostori imaju dovoljno dnevnog svjetla i pogleda, uz ograničavanje količine stakla izloženih jakom suncu, u dvije primarne ‘dine’ smješteni su javni i upravljački djelovi zajedno s administrativnom zonom koja se međusobno povezuje središnjim dvorištem, definišući oazu unutar zgrade koja je sastavni dio njene strategije prirodne ventilacije.
Solarna energija
Napajano svojim solarnim nizom i opremljeno tehnologijama sledeće generacije za operacije po LEED Platinum standardima, novo sjedište Beeah grupe je dizajnirala Zaha Hadid Architects (ZHA) da postigne neto nultu emisiju i bude upravljački i administrativni centar grupe koji postavlja nova mjerila za buduća radna mjesta.

Beskontaktni putevi za zaposlene, virtualni vratar, pametne sobe za sastanke i prateća aplikacija koja automatizuje svakodnevne zadatke čine ovu zgradu pametnom. Pametni sistem upravljanja zgradom automatski prilagođava osvjetljenje i temperaturu zavisno o popunjenosti i dobu dana. Sobe su takođe opremljene za daljinske i hibridne radne scenarije s moćnim alatima za saradnju.
Sjedište obloženo betonom ojačanim staklenim vlaknima
Dok odjekuje okolnim pješčanim dinama, oblik sjedišta Beeah je takođe dizajniran i orijentisan da izdrži ekstremne vremenske uslove na lokaciji.
Zgrada se napaja solarnim nizom povezanih sa Teslinim baterijama, za koje je studio rekao da zadovoljavaju potrebe zgrade za energijom tokom svakog dana i noći.

Zastakljivanje je ograničeno
Zastakljivanje je svedeno na minimum u cijeloj kancelariji kako bi se spriječilo izlaganje oštrom pustinjskom suncu, dok betonske ploče ojačane staklenim vlaknima preko spoljašnjosti pomažu u regulisanju unutrašnje temperature.
Na licu mjesta postoje i postrojenja za prečišćavanje vode koja filtriraju otpadnu vodu kako bi se smanjila potrošnja.
Prostori su dizajnirani da maksimiziraju prirodno svjetlo uprkos ograničenom zastakljivanju
Iznutra, zgrada je podijeljena na dva krila. U jednom se nalaze javna i upravljačka odjeljenja Beeah grupe, dok se u drugom nalazi administrativna zona. Ove oblasti su povezane centralnim dvorištem, koje je Zaha Hadid Architects opisala kao “oazu unutar zgrade” koja pomaže da se obezbijedi prirodna ventilacija.

Vrhunac unutrašnjosti je predsoblje sa kupolom od 15 metara visine zgrade, koje je dizajnirano da poboljša prirodnu ventilaciju i omogući prirodnom svjetlu da se filtrira.
Sjedište takođe ima centar za posjetioce, auditorijum i pametne sale za sastanke dizajnirane da olakšaju saradnju sa udaljenim i kancelarijskim radnicima.
Turbosealtech New Incubator and Office Building / New Wave Architecture
Staklena piramida u Teheranu
Foto: Parham Taghioff
NOVI POSLOVNI INKUBATOR I POSLOVNA ZGRADA TURBOSEALTECH DIZAJNIRANA JE OD STRANE NEW WAVE ARCHITECTURE. PROJEKAT SE NALAZI U TEHNOLOŠKOM PARKU PARDIS, U PREDGRAĐU TEHERANA, KOJI IMA ZA CILJ DA LJUDIMA PRUŽI PLATFORMU ZA ISTRAŽIVANJE I INOVACIJE. PARDIS TECHNOLOGY PARK SE SASTOJI OD RAZVOJNIH PROJEKATA ARHITEKATA IZ IRANA, A OVAJ PROJEKAT NASTAVLJA OVAJ OBRAZAC IZRAŽAVANJA VIZIJE IRANSKIH ARHITEKATA KROZ SVOJ DIZAJNERSKI TIM.

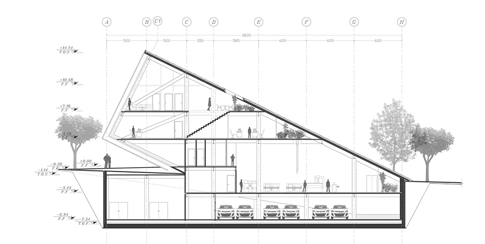
Turbosealtech je projekat srednje veličine i površine je 2500 kvadratnih metara. Pristup dizajnu se fokusirao na interakciju između tehnologije, lokacije, funkcije i pejzaža. Uzimajući u obzir kontinuitet pogleda na lokaciju, kontrolu toplote i funkciju zgrade, forma je generisana. Volumen zgrade je izvučen iz zemlje, stvarajući vizuelno lijep horizont i harmoniju sa okolinom.
Staklena opna
Stakleni paneli obavijaju većinu volumena strukture, kako bi omogućili dovoljno prirodnog svjetla u unutrašnjost - kao što je slučaj u većini istraživanja poslovne arhitekture danas, zahvaljujući često dubokim planovima i čvrstom prostornom programiranju koji se vidi u takvim zgradama.
Spoljašnjost zgrade je umotana u staklenu kovertu omogućavajući ulazak prirodnom svjetlu, a aluminijumski profili na spoljnom sloju kontrolišu unutrašnji dobitak toplote. Izložena konstrukcija korišćena za enterijer preuzeta je iz forme objekta koji predstavlja karakterističnu strukturu industrijskih objekata. Zgrada u obliku staklene piramide podijeljena je na pet horizontalnih nivoa koji su dobro povezani vertikalno providnim liftom. Unutrašnji prostori su dizajnirani na način da poboljšaju interakciju između korisnika.

Kancelarije se nalaze na gornjim nivoima, a radna kuća otvorenog plana je dizajnirana u transparentnom ograđenom prostoru na nižim nivoima što daje posjetiocima priliku da posmatraju proizvodnju. Ulaz se nalazi u zasječenom uglu zgrade i motiviše korisnike da uđu u zgradu. Presječeni krov stvara terasu koja donosi prirodno svjetlo i vazduh, formirajući zajednički otvoreni prostor za posjetioce i zaposlene da imaju pristup svježem vazduhu, interakciju i obavljanje posla.
Kosi krov je poništen kako bi se stvorio zeleni koridor od poda do krova da bi se stvorio dinamičan prostor, smanjila temperatura zgrade i potrošnja energije. Pored zgrade je ugrađen i rezervoar za vodu za prikupljanje kišnice koja će se koristiti za navodnjavanje i upotrebu koja nije za piće.
Pet nivoa
Zgrada u obliku staklene piramide podijeljena je na pet horizontalnih nivoa koji su dobro povezani vertikalno providnim liftom. Unutrašnji prostori su dizajnirani na način da poboljšaju interakciju između korisnika.
Prema riječima arhitekata, ovaj golemi podvig dizajna i inženjeringa zapravo je proizašao iz potrage za metodama za maksimiziranje pogleda na licu mjesta i ublažavanje prekomjernog povećanja topline tokom vrućih ljeta u regiji. Objedinjujući tehnologiju, funkciju i dizajn krajolika poslovna zgrada ima za cilj ponuditi mjesto profesionalcima za realizaciju važnih istraživanja i predvodnih inovacija, unutar razvoja koji je postao središte iranskih arhitekata da izraze svoje vizije budućnosti.

Poštujući upravo to načelo, arhitekti dijele da je trenutna morfologija zgrade konceptualizovana oduzimanjem segmenta iz prizme postavljene na mjestu, koji je stvorio konzolni dio duž fasade zgrade. Rezultirajući oblik koso strči iz tla ispod njega, prenoseći krutu monumentalnost koja je u suprotnosti s njegovom naizgled nestabilnom konfiguracijom, ali će zasigurno izazvati osjećaj strahopoštovanja u umu praktički svakog posmatrača. Par nagnutih staza odvaja se od otvorenog javnog prostora koji prethodi zgradi, u sjeni njezinih nadstrešnica. S jedne strane zakrivljena rampa vodi vozila do parkinga u podrumu, dok druga šetnica mami posjetioce prema glavnom ulazu, uokvirena džepovima flore duž baze konzole.
Stakleni paneli obavijaju većinu volumena strukture, kako bi omogućili dovoljno prirodnog svjetla u unutrašnjost - kao što je slučaj u većini istraživanja poslovne arhitekture danas, zahvaljujući često dubokim planovima i čvrstom prostornom programiranju koji se vidi u takvim zgradama. Međutim, interpretacija ove konvencije od strane New Wave Architecture koristi drugi sloj aluminijskih profila raspoređenih u mrežasti okvir iznad stakla, kako bi zasjenila upadnu svjetlost i dodala više ritma dizajnu fasade. Iako većina aluminijskih dijelova odgovara kvadratnoj mreži, neki su nagnuti kako bi se izbjegla monotonija.

Ova konfiguracija dodatno doprinosi geometriji zgrade koja mijenja perspektivu kada se gleda iznutra, budući da se zbog suprotnosti između ravnina poda i spoljne mreže čini da struktura balansira na rubu noža dok uokviruje okolni urbani horizont. Alternativno, nagnuta zadnja površina volumena je prekrivena zelenim krovom koji se proteže od krajolika ispod, unoseći element održivog dizajna, zbog svoje sposobnosti apsorbiranja topline i smanjenja potrošnje energije.
Opremljena s 2500 četvornih metara funkcionalnog prostora raspoređenog na pet etaža (tri nadzemne i dvije podzemne), unutrašnje zoniranje poslovne zgrade sastavljeno je tako da podstakne interakciju - prema arhitektima, pri čemu su svi spratovi povezani providnim liftom. U dvije podzemne etaže prvenstveno se nalaze skladišni prostori i parking, dok se u prizemlju nalaze recepcija, predvorje i toaleti. Osim toga, radna kuća otvorenog plana postavljena je na nižim nivoima. Ova mjera planiranja donesena je kako bi posjetiocima pružili uvid u svakodnevno poslovanje kompanije.

Kancelarije zauzimaju praktično cijeli prostor na prvom spratu, osim prostora terase sa zadnje strane koja je smještena unutar praznine izrezane iz zelenog hodnika uz kosi krov. Ova zona djeluje kao zajednički vanjski prostor koji omogućava širenje svjetla dalje u unutrašnjost, dok zaposlenicima pruža prostor za rekreaciju za okupljanje i opuštanje. Drugi sprat sadrži konferencijske prostore, gostinjsku sobu i kancelariju za više rukovodstvo. Kao dio energetski svjesnih projektnih mjera usvojenih kroz zgradu, arhitekti su takođe ugradili rezervoar za vodu u blizini za prikupljanje kišnice za nepitku upotrebu na licu mjesta.
Blumenthal Building / Kruchin Arquitetura
Staro i novo koegzistiraju u istoj zgradi
Foto: Daniel Ducci
U Sao Paolu, u Brazilu, studio Kruchin Arkuitetura dizajnirao je novu zgradu, Edith Blumenthal, gdje su staro i novo morali da koegzistiraju da bi se očuvao urbani imidž važne i prometne ulice Pinheiros, odnosno jedne od najživljih i najotmjenijih djelova grada.

Nova poslovna zgrada je napravljena u ulici Joao Moura, na parceli koja je predstavljala konstrukciju sa početka vijeka. Bio je to dvospratni stambeni kompleks (prizemlje i sprat) sa balkonima i kosim krovom. Nisu to bili popisani objekti, već postojeća građevina za koju su arhitekte namjerno smatrale da ima veliku vrijednost u cjelini, kao urbanistički element ulice, a ne u svakom njenom arhitektonskom elementu.
Fleksibilan raspored
Konstrukcija novog objekta izvedena je od prednapregnutih armirano-betonskih ploča. Odsustvo vertikalnih nosača omogućilo je izuzetno svestran i fleksibilan raspored različitih gornjih spratova kako bi se zadovoljile savremene i buduće potrebe kupaca.
Zadržavajući stare fasade i njihove balkone, arhitekte su sačuvale tradicionalnu sliku ulice. Istovremeno, iza i obuhvatajući ovaj važan filter, stvorili su savremenu zgradu sposobnu da zadovolji sve zahtjeve tehnološkog društva sa naprednim i modernim sistemima, uključujući liftove i parkinge specifične za električna vozila.

Arhitekta Samuel Kruchin, osnivač agencije Kruchin Arkuitetura, istakao je važnost da se projekat uklopi u kontekst okruženja, očuvajući karakteristike starog grada i ispunjavajući zahtjeve savremenog. Arhitekte su sa velikom pažnjom upravljale svakim aspektom ovog ãumetanja“, poklanjajući najveću pažnju dizajnu svih zajedničkih prostorija i onih u kontaktu sa okolinom.
Na nižem nivou u odnosu na ulicu, napravili su baštu koja jasno odvaja staru fasadu od nove zgrade. Pozadi je napravljen drugi veliki zeleni prostor, sa velikom terasom-solarijumom koji, još jednom, obezbjeđuje prelaz između nove konstrukcije i konteksta. Konačno, metalni suncobrani, koji filtriraju otvore na gornjim nivoima zgrade, i rešetke pristupnih kapija posebno dizajnirane da dočaraju merlone, još jednom su omogućile arhitektama da uspostave vezu između novog i starog, i u ovom slučaju tradicionalno zanatsko umjeće zemlje.

Konstrukcija novog objekta izvedena je od prednapregnutih armirano-betonskih ploča. Odsustvo vertikalnih nosača omogućilo je izuzetno svestran i fleksibilan raspored različitih gornjih spratova kako bi se zadovoljile savremene i buduće potrebe kupaca.
Zadržavanje fasade
Zadržavajući stare fasade i njihove balkone, arhitekte su sačuvale tradicionalnu sliku ulice. Istovremeno, iza i obuhvatajući ovaj važan filter, stvorili su savremenu zgradu sposobnu da zadovolji sve zahtjeve tehnološkog društva sa naprednim i modernim sistemima, uključujući liftove i parkinge specifične za električna vozila.
Restrukturiranje ili oporavak napuštenih površina u urbanim centrima je oduvijek bila veoma važna tema i izvor mnogih istraživanja i projektnih rješenja koja su razvijali arhitekti.

Zaista je neophodno da staro i novo koegzistiraju u istoj zgradi ili kontekstu, prepoznavanjem arhitektonske vrijednosti njenih mogućih već postojećih djelova.Kontekst ove zgrade predstavlja istorijsko sjećanje na mjesto i pejzaž čiji je dio, a istovremeno mora se dozvoliti da ãnovo“ ima svoje mjesto, da se izjasni za ono što jeste i da doprinese izgradnji novog urbanog prostora i novog vremena.








