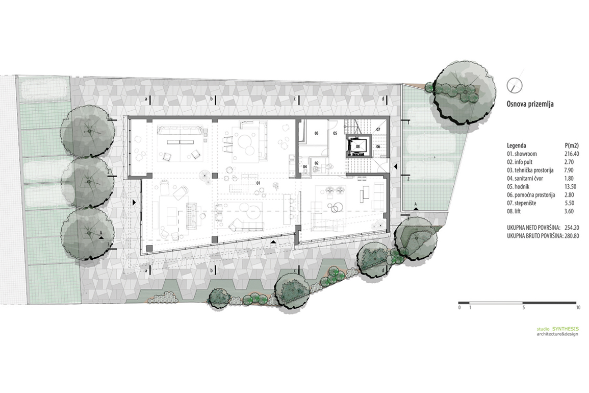
BETULA Design Center nalazi se u Lješevićima, u opštini Kotor, neposredno uz magistralni put Kotor-Budva, na parceli površine 876m2.
Na datom lokalitetu je naglom izgradnjom objekata namijenjenih za poslovne djelatnosti došlo do intenzivnog pretvaranja zelenih površina u betonske i izgrađene površine. U odnosu na to na predmetnoj lokaciji je projektantski fokus bio najviše usmjeren na inteziviranje zelenog fonda kroz parterno uređenje, sa njegovim prenošenjem i u sam objekat.
Objekat je slobodnostojeći, spratnosti P+2, bruto građevinske površine 870m2, orijentacije jugozapad-jugoistok. Spratna visina prizemlja je 4.50m, dok su spratne visine prve i druge etaže 3.80m.
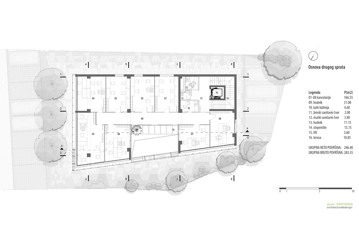
Osnova ima oblik izduženog trapeza, koji se proteže na sve tri etaže. U dobijenu jednostavnu formu ‘umetnut’ je na prvoj etaži ozelenjeni poluatrijum, na koji je omogućena vizura iz većine unutrašnjih prostora.

Na tri etaže objekta raspoređeni su sadržaji:
Na prizemlju se sa natkrivenog glavnog ulaza na sjevero-istočnoj strani pristupa u prostor showroom-a za salon namještaja u okviru kojeg se nalaze i prijemni pult, sanitarije, pomoćna prostorija i tehnička prostorija. U ovoj zoni objekta smješteno je jezgro sa jednim liftom i trokrakim stepeništem.
Spratovi su formirani oko centralne zelene terase – ozelenjenog poluatrijuma. Na 1. i 2. spratu su projektovani kancelarijski prostori sa mini kuhinjom i sanitarijama smještenim uz komunikaciono jezgro. Poslovna namjena ovog objekta prilagođena je savremenom poslovanju, pa se objekat sastoji od transformabilnih kancelarijskih prostora. Na krovu objekta se nalazi otvorena terasa.



Za materijalizaciju objekta korišteni su kvalitetni savremeni materijali sa odgovarajućim karakteristikama za uslove primorja, otporni na povećanu vlažnost, insolaciju i salinitet.
Sjeveroistočna i sjeverozapadna fasada objekta su okrenute ka saobraćajnici i kao takve predstavljaju fasade koje daju vizuelni identitet ovom poslovnom objektu.
Obzirom da su na etažama projektovani kancelarijski prostori cilj je bio stvoriti vizuelnu barijeru u odnosu na okruženje (skladišni prostori, prometna saobraćajnica) a ipak dozvoliti da prirodno svjetlo prodre u prostore.
Zato je projektovana demit fasada sa fasadnim prozorima od aluminijumskih profila, a zatim ‘presvučena’ polutransparentnim aluminijumskim perforiranim panelima. Perforirani fasadni paneli od aluminijumskog lima projektovani su kao obostrano bojeni u RAL 9002 boju visokog kvaliteta. Na fasadi se razlikuju dva tipa panela i to jedan sa paralelnim kružnim perforacijama Ø20mm i korakom perforacije 40mm i drugi tip sa naizmjeničnim kružnim perforacijama Ø50mm sa korakom perforacije 65mm.
Kombinovanjem mehaničkih osobina profilisanih limova i estetskih i funkcionalnih prednosti perforiranih površina kreirana je autentična, ventilisana fasadna površina.
Ova površina se mijenja od monolitne strukture danju do transparentne, noću, kada se uključe svjetla. Odvajanjem perforiranog omotača za 50cm od primarne fasade omogućeno je održavanje primarne fasade postavljanjem montažno-demontažnih perforiranih gazišta preko potkonstrukcije perforiranih panela.
Kako se u prizemlju nalazi salon namještaja, potrebno je bilo objekat otvoriti ka prolaznicima, pa se u prizemlju kao element omotača na ovim fasadama javlja transparentno staklo.

Jugoistočna/jugozapadna fasada su projektovane kao ‘demit’ fasada. Sve fasade objekta su u bijeloj boji.
U izložbenom prostoru – prizemlju objekta i na stepeništu i zajedničkim hodnicima u jezgru projektovan je cementni podni sistem, monolitan, otporan na habanje i pogodan za ovakvu namjenu prostora. U kancelarijama su kao podna obloga predviđene tekstilne ploče.
Parking površine su predviđene sa završnom oblogom od betonskih ‘travnih’ ploča, s ciljem da se i u ovoj zoni zadrže travnate površine. Plato na sjevero-zapadnoj strani objekta projektovan je od betonskih opločnika nepravilnih konusnih oblika i služiće kao izložbeni prostor za «outdoor» namještaj.
Zelene površine se nenametljivo nadovezuju na šaru popločanja sa naizmjeničnim prodorima zelenila i popločanih površina. Time se postiže postepeni prelaz ka zelenim površinama sa žbunastim vrstama i drvećem. Zbog orijentacije objekta projektovane su vrste sjenke i polusjenke tamnijeg kolorita čime je akcenat stavljen na arhitekturu objekta. Od drveća je planirana aromatična vrsta Osmanthus fragrans koja svojom visinom neće zaklanjati pogled sa zelene terase.
Na prednjem platou u otvorima u popločanju projektovan je drvored breza kako bi se vizuelno odvojio parking prostor i obezbijedila zasjena za parkirana vozila. Izabrana je vrsta breze Betula alba zbog prozračne krošnje koja neće zaklanjati fasadu objekta.
Zelena terasa je projektovana kao ekstenzivni krovni vrt sa žbunastim vrstama i drvećem. Na otvoru u fasadi projektovana je konstrukcija od sajli za vrste puzavica čime će jedan dio sjeverne fasade biti ozelenjen.
tekst: Studio Synthesis architecture&design
www.studiosynthesis.me








